由中机国际设计完成的邵阳市中心医院东院区一期工程项目荣获2018年度机械工业优秀工程勘察设计二等奖。
1、项目概况

邵阳市中心医院东院是一所集医疗、教学、科研、预防、保健为一体的三级非营利性综合医院,连续3年被纳入湖南省重点项目,同时列入邵阳市十大民生项目。项目位于湖南省邵阳市东南部,北侧是邵阳市主要城市干道--邵阳大道;东临平康路,西靠屏丰路,南侧为医院的后期规划用地。院区总用地约18.7公顷,其中一期用地约9.3公顷。一期总建筑面积约17.8万平方米,包含医疗综合楼(含门急诊医技部、妇儿专科病房楼、肿瘤专科病房楼、综合病房楼)、科研教学及培训中心楼、学生及职工宿舍、高压氧舱、液氧站、污水处理站、垃圾处理站、岗亭等配套设施。共设有1555张病床。
2、规划设计理念

项目结合地形特点进行医院的总体布局,主轴线为贯穿主要医疗功能和景观的中心轴,此轴线依据山势和地形特点自北向南蜿蜒延伸,依次串联了入口主广场、门急诊、医技、住院楼、对景景观坡地、科研教学及培训中心楼、山体景观公园等,以山顶上的标志塔为最终收尾。此序列成为医院的主要脉络,决定了整个医院的总体布局形态。
项目总体布局功能分区明确,内外交通路线流畅,按照现代化医院,进行打造,真正实现医患分流、洁污分流。
建筑内部平面功能齐全、布局合理,诊室区域采用模块化设计,方便功能之间的转换,内部工艺流线设计合理,医护流线高效运行。

建筑立面设计的原则是运用新古典主义的建筑语言塑造高贵有内涵的建筑气质,采用经典的新古典主义建筑,使得全院具有一种历史感,主体建筑采用绛红色基调,使医院具备一种温馨和谐的气氛,又如花朵般掩映在周围的绿色建筑之中,采用富有层次变化的立体元素主导的表皮形式,结合精致典雅的古典元素细部,赋予医院庄重典雅的形象特质。建筑整体通过虚实变化的体量组合,细部精巧的构件衔接,优雅自然的空间过渡,建筑细部既丰富又不流于繁琐,既具备浑然一体的大气造型,又透露着精致典雅的独特气质,处处展现着医院的时代性与标志性。
3、三维协同设计
为提高设计质量,项目通过全程全专业三维协同设计,实现建筑的可视化、精细化、智能化、虚拟化和协同化,使建筑设计更精细,更准确。

与传统的二维图纸相比,三维图形表达更为直观,更系统,对空间的表达的更为准确。


土建设计:对于车道、楼梯间、外立面墙身及其它复杂节点处,输出三维可视化成果,有助于在施工过程中更快捷地了解图纸,减少不必要的错误。


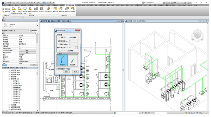
给排水设计:与传统二维设计相比,末端定位更准确,系统更加清晰,避免传统的反复核对立管,喷头布置更合理、简便。

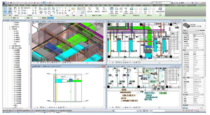
暖通设计:通过三维模型建立,空间更加清晰,能更为合理地布置风管位置。暖通管道空间统一排布,风机房布置更加合理。



电气设计:三维模型的建立,能更加合理有效地利用空间,吊顶空间支架设计,管线排布更细致。
4、结语



精心设计结合精湛的施工工艺,共同铸就了邵阳大地上这栋美丽的建筑。项目自投入使用以来,广受当地及周边地区百姓的热烈好评,已经成为当之无愧的地标建筑。