山若黛墨,潭如砚,
高阁入云,待鹰还。

立夏繁茂、万物华实,中机国际建筑设计研究所一举中标山鹰潭住宅项目。在短短两周里,本方案团队通过紧张而有序、理性而富于激情的设计创作,在公司总建筑师、建筑规划设计研究院院长罗劲的指导下,众力协作、迎难而上,喜获中标!

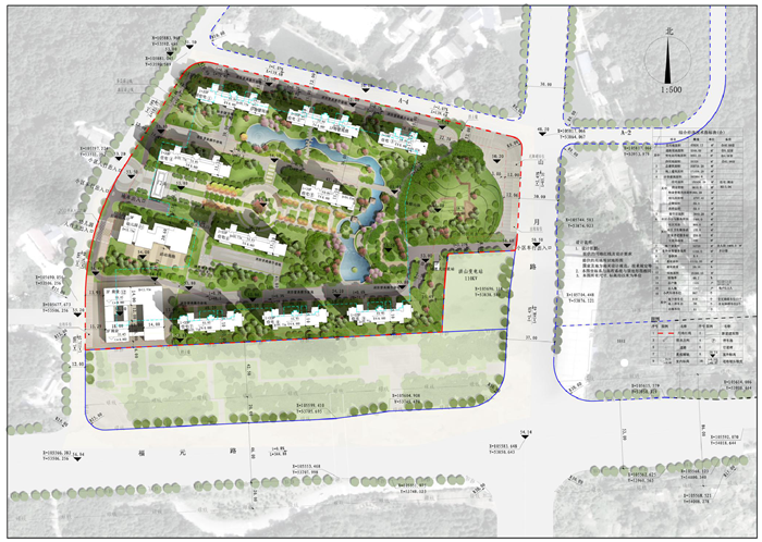
本项目位于长沙市开福区,福元路与山月路交汇处、山鹰潭旅游度假区东部,场地内外有自然山体和水系,环境优美、交通便利。项目总用地约96亩(用地东南角为洪山变电站),规划总建筑面积约21万平方,总户数1626户,设计以高层建筑为主:9栋高层住宅、1栋集中商业、1栋沿街商业、1栋9班幼儿园,及一层地下室。

场地内原始地形的竖向高差较大,西面和中部是低洼的池塘与农田,东面为隆起的山体,场地与周边城市道路的高差也较大。设计既要满足与周边城市道路的衔接和周边环境的协调,又得考虑场地内土方平衡,因此,我们充分利用现状地形特点,从以下几方面来构思设计:
1、首先,将西面和中部低洼部分整体开发为地下空间,使得地面部分与城市道路平接,保证场地绝大部分平整,尽量使土方整体平衡。

2、为留出更多的土地来创造生态宜居环境,规划百米高层住宅行列错位布置,楼栋之间留有较大间距而减少相互的干扰,自然形成几个相互联系的组团空间,进而也形成了较大的中心花园景观,提升了居住品质;同时,保留部分东部原有山体,使其对东南角变电站和东面城市干道进行视线遮挡和噪音屏蔽,创造住区安全内向与宁静宜居的环境。

3、考虑东面城市干道与周边规划住宅区的未来商业效应,将东北部与城市干道交汇处打造成集中商业广场,再将面向广场的二层商场设计成退台式立体花园建筑,并结合东北部的保留山体,重塑山形与退台式商场相融合,向小区内形成梯田景观,将人工与天然完美结合,赋予了场地自然风貌新的生命,也让场地原始记忆得以保留。

4、在小区内由西向东布置了一条主景观轴,将西面主入口广场与东部景观山体串联起来,成为了内部环境的主要呼吸通道,也让场地最低点与制高点形成了空间对话和遥遥对景。

5、而在大自然中,水与山总是如影随行,我们希望居住环境里也流动着生命之源泉,便开凿了一支浅显小溪在北部由西向东,又转而流向南面,沿山脚下与主景观轴交汇,最后停顿沉积而成一汪清潭,让这条水系串联起小区内各景观小组团,也打开了一道道呼吸通道,让清风带着溪水在居住空间里流动起来,生生不息。

6、在西侧回小区的必经之路上,考虑家长接送幼儿和一并生活采购的便利性,同时在满足幼儿园的日照和室外活动场地等条件下,将幼儿园紧邻主入口南侧,又在其南面设了一组半围合式沿街商业,这种内街式购物的商业形态和高低凹凸虚实变化的建筑造型相结合,营造出新颖别致又充满亲和力的商业氛围,与南面毗邻的福元路城市绿化带形成了良好的购物休闲环境。

7、人们盼望回家的大门常打开,有家人在、有温情在,而我们设计的主入口大门如同一个放大的家门,是敞开通透的,是明亮轻快的,并将地下车库出入口做统一造型,这样处理也是方便安全的,踏入这道“家门”便能一眼望见“家里”的那座小山,在静静的等候君归来。

而这份方案里,不仅有美好的设计蓝图,还蕴藏着这般故事……
故事伊始:
旧时,潭州北,湘水东,距市数十里,得一片山水福地。此处人迹罕至,鹰燕漫天飞。偶有樵夫误入,云深不知处。
星移斗转、沧海桑田,旧时福地已成繁华市井与农田交融处。如今将居于此地,得开山破田、大兴土木,必会惊扰山间鹰、水中鱼为人与生灵万物和谐共处,将留山之角、引水之源,而造家园,盼得鱼游回、鹰归来。
保有一方居所安宁,又隔而不绝繁荣闹市,则四周百米高楼拔地起,内围庭院景致变化多姿。重塑东北方山势,山临街一侧造商贾云集,而临水一侧留桑竹美池、落英缤纷,享家园内花鸟虫鱼天然趣。

故事尾声:
梦醒时分,虽虚幻,却美轮美奂,欣然向往。于是乎,提笔记下,落纸成画。望君今朝有幸得此山水鹰飞之福地。